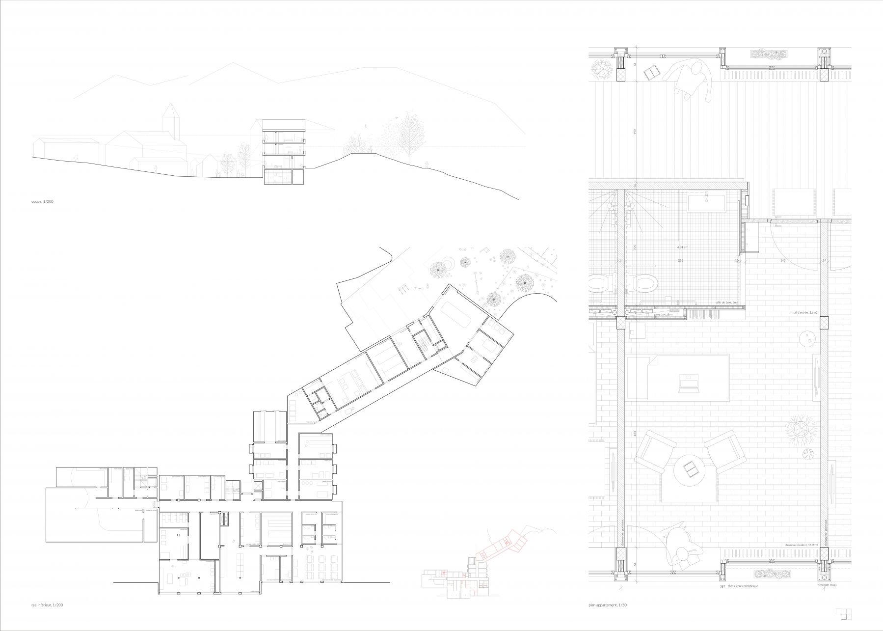
EMS Christ-Roi

Lens VS

Concours d'architecture.

Transformation et agrandissement.

2017

1er prix (en association avec Eido Architectes Sàrl).

  • concours